ежедневно с 10 до 18

Закажите обратный звонок!

Нет в наличии

Печь дровяная Harvia Classic 220 Duo

У нас можно купить дровяную печь Harvia Classic 220 Duo (Харвия Классик 220 Дуо) по цене производителя в Москве. Мы принимаем заказы через сайт, по e-mail, по телефону. Формы оплаты любые. Способы получения товара: самовывоз, доставка по СНГ.
Harvia
Мощность: 18 кВт. Объём парилки: 8-22 м3. Размеры (ШхГхВ): 475х(515+280)х800 мм. Регулировка высоты (ножки): + 30 мм. Вес печи (без камней): 80 кг. Вес камней: 50 кг. Толщина верхней плиты топки: 10 мм. Диаметр отверстия для дымохода: Ø 115 мм.
90 188
  WKC220LUX
Объём парилки            8 - 20 м3
Камни 50 кг
Диаметр дымохода Ø 115 мм
Подключение дымохода верхнее/заднее
Мощность 24,1 кВт
Высота 800 мм
Ширина 475 мм
Глубина 515+280 мм
Масса 80 кг
Толщина верхней плиты топки 10 мм
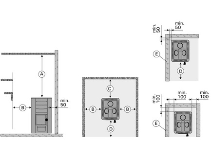
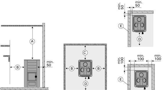
Безопасное расстояние сбоку 300 мм
Безопасное расстояние сзади 300 мм

Безопасное расстояние

от верха до потолка

1300 мм

Расстояние от задней грани

до центра отверстия дымохода

135 мм

Расстояние от пола до центра заднего

отверстия

560 мм

Максимальная длина поленьев

39 см

Диаметр поленьев

8-15 см

Минимальное расстояние

до негорючих материалов

50 мм

Температура печных газов

403 °C

КПД

68 %

Тяга дымохода

12 Па

Закладка при розжиге

3.0 кг

Повторные закладки

4.5 кг

Зазор зольника (после растопки)

20 мм

Выброс монооксида углерода при 13% O2

9782 мг/м3 (0,78%)

Массовый расход печных газов

19,6 г/сек

Производство

Финляндия

Harvia Classic 220 Duo – дровяная печь классической линейки с выносной топкой без крышки. Купив такую печь, вы сможете поддавать на значительное количество камней, т.к. у печи камни доступны в двух плоскостях (передняя часть выполнена в виде решетки). Мощности этой модели достаточно, чтобы прогреть парную объемом до 20 м3. Отсек для камней довольно вместительный – 80 кг. Топится изделие из соседнего помещения через большой выносной тоннель со стеклянной дверцей и широким зольником. Особого внимания заслуживает внешний вид печи. В отделке корпуса используются нержавеющая сталь и черный графитовый цвет, которые хорошо сочетаются. Дровяная печь Harvia Classic 220 Duo может быть дополнена баком для воды, который устанавливается на дымоход. Это даст возможность не только греть воду, но и увеличивать влажность в сауне.

Купить печь Harvia Classic 220 Duo по цене производителя в Москве можно на нашем сайте, либо у нас магазине. Формы оплаты любые. Способы получения товара любые.

Инструкция по установке и эксплуатации печи Harvia Classic 220 Duo